Bedrijvenpark Twente 165a, 7602 KE
Almelo

Voor de verhuur bieden wij één kantoorruimte aan welke is gelegen aan de noordzijde van het bedrijfsverzamelgebouw. Op het bedrijvenpark Twente in Almelo is er een modern en functioneel bedrijfsverzamelgebouw gevestigd bestaande uit 16 units. 

€ 850,- p/m.
Brochure aanvragen

Omschrijving

Voor de verhuur bieden wij één kantoorruimte aan welke is gelegen aan de noordzijde van het bedrijfsverzamelgebouw. Op het bedrijvenpark Twente in Almelo is er een modern en functioneel bedrijfsverzamelgebouw gevestigd bestaande uit 16 units. 

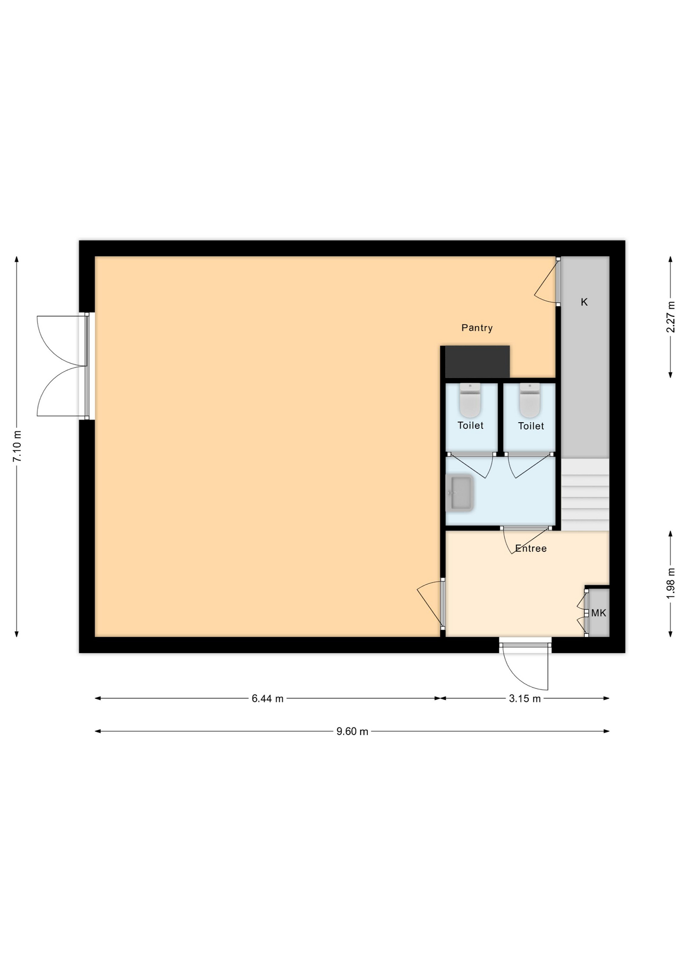
De kantoorruimte heeft een totaaloppervlakte van ca. 140 m², verdeeld over de begane grond en de eerste verdieping. Beide verdiepingen kunnen volledig worden ingericht en gebruikt als kantoorruimte. De eerste verdieping is te bereiken via een vaste trap en is voorzien van te openen ramen. 

Kenmerken

Overdracht
Vraagprijs:
€ 850,- p/m.
Aanvaarding:
In overleg
Servicekosten:
Niet van toepassing
Bouw
Bouwvorm:
Bestaande bouw
Bouwjaar:
1997
Bouwjaar toelichting:
Indeling
Soort Object:
Kantoorruimte
Totale oppervlakte:
140 m²
In units vanaf:
140 m²
Overig
In units vanaf:
140 m²
Locatie:
Bedrijventerrein, Kantorenpark
Aantal verdiepingen:
2
Energieklasse:
A
Onderhoud binnen:
Uitstekend
Onderhoud buiten:
Uitstekend

Plattegronden

Omgeving

Brochure aanvragen

Wil je meer weten over dit object? Wij sturen je graag geheel vrijblijvend de brochure toe.