Hengelosestraat 141, 7521 AA
Enschede

Gelegen op een prachtige zichtlocatie, aan één van de belangrijkste verkeersaders van Enschede, is deze karakteristieke kantoorvilla per direct beschikbaar voor de verhuur.

€ 37.500,- p/j.
Brochure aanvragen

Omschrijving

Gelegen op een prachtige zichtlocatie, aan één van de belangrijkste verkeersaders van Enschede, is deze karakteristieke kantoorvilla per direct beschikbaar voor de verhuur. De kantoorvilla is gelegen pal aan de kruising van de Tubantiasingel en Hengelosestraat waar dagelijks enkele duizenden fietsers en voertuigen passeren. 

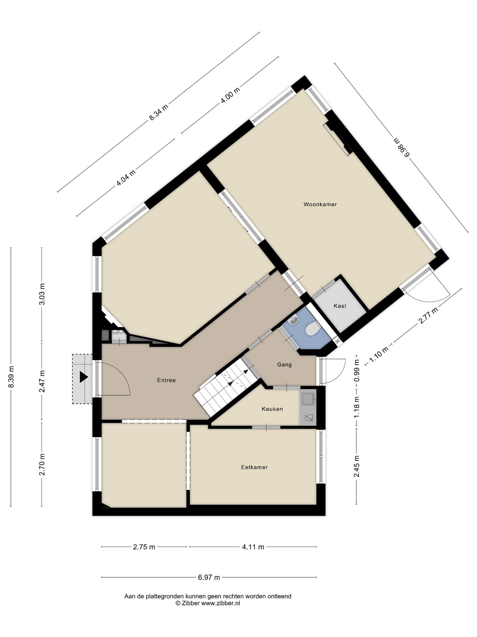
De zelfstandige kantoorvilla, bestaande uit drie bouwlagen, heeft een totale oppervlakte van ca. 256 m². Per bouwlaag is de kantoorvilla voorzien van diverse ruimtes waardoor eenvoudig en snel een prettige, afgescheiden, werkomgeving gecreëerd kan worden. Alle kantoorruimtes zijn voorzien van veel daglichttoetreding waardoor het ervaren wordt als een prettige werkomgeving. 

Authentieke elementen zoals bijvoorbeeld een en-suitedeur, glas-in-lood en een prachtige marmerenschouw zijn details welke goed bewaard zijn gebleven. De kantoorvilla is daarnaast ook voorzien van hedendaagse gemakken zoals airconditioning, een hedendaagse ICT-infrastructuur en een badkamer op de eerste verdieping. Goed om te vermelden, er zijn een tweetal gescheiden toiletvoorzieningen in de kantoorvilla. 

Aan de achterzijde van de kantoorvilla is een ruime parkeerplaats gelegen welke toegankelijk is vanaf de Hengelosestraat en Tubantiasingel. 

Kenmerken

Overdracht
Vraagprijs:
€ 37.500,- p/j.
Aanvaarding:
Direct
Servicekosten:
Niet van toepassing
Bouw
Bouwvorm:
Bestaande bouw
Bouwjaar:
1925
Bouwjaar toelichting:
Indeling
Soort Object:
Kantoorruimte
Totale oppervlakte:
256 m²
Perceeloppervlakte:
354 m2
In units vanaf:
256 m²
Parkeergelegenheid
Parkeerplaatsen:
6
Overdekt parkeren:
Aan de achterzijde van de kantoorvilla is een ruime parkeerplaats gelegen welke toegankelijk is vanaf de Hengelosestraat en Tubantiasingel.
Onoverdekt parkeren:
Aan de achterzijde van de kantoorvilla is een ruime parkeerplaats gelegen welke toegankelijk is vanaf de Hengelosestraat en Tubantiasingel.
Overig
In units vanaf:
256 m²
Locatie:
Kantorenpark, In woonwijk
Aantal verdiepingen:
4
Energieklasse:
C
Onderhoud binnen:
Goed tot uitstekend
Onderhoud buiten:
Goed tot uitstekend

Plattegronden

Omgeving

Brochure aanvragen

Wil je meer weten over dit object? Wij sturen je graag geheel vrijblijvend de brochure toe.