Torenlaan 44, 7559 PJ
Hengelo

Aan de Torenlaan is deze functionele bedrijfsruimte met representatieve kantoorruimte beschikbaar voor de verhuur. Het object is gunstig gelegen aan de Torenlaan, een belangrijke verbindingsweg tussen Hengelo en Borne.

€ 2.750,- p/m.
Brochure aanvragen

Omschrijving

Aan de Torenlaan is deze functionele bedrijfsruimte met representatieve kantoorruimte beschikbaar voor de verhuur. Het object is gunstig gelegen aan de Torenlaan, een belangrijke verbindingsweg tussen Hengelo en Borne. De omgeving kenmerkt zich door een groene setting met diverse gevestigde bedrijven, waaronder Buiter Beton, Hubo en Auto Smelter.

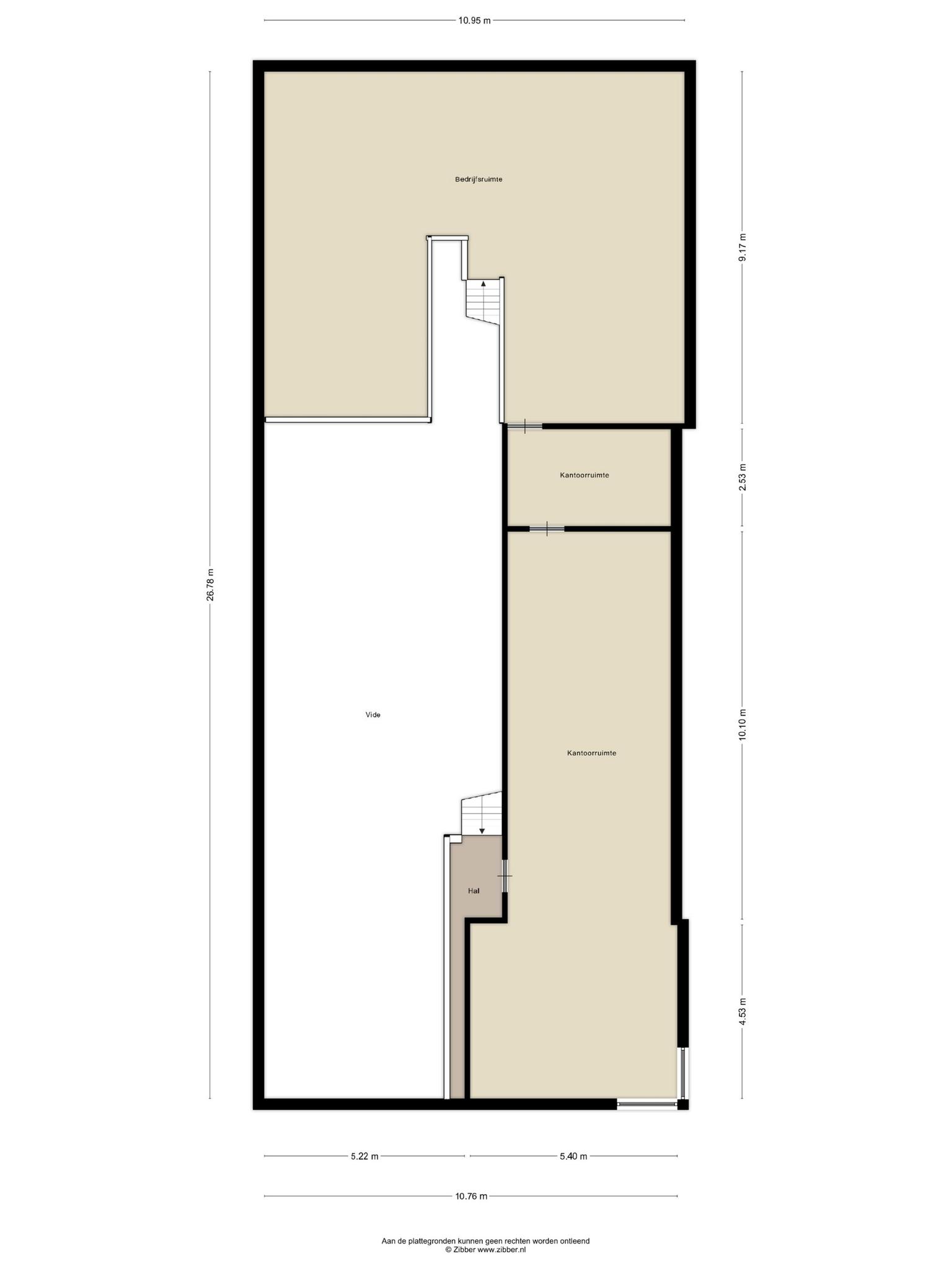
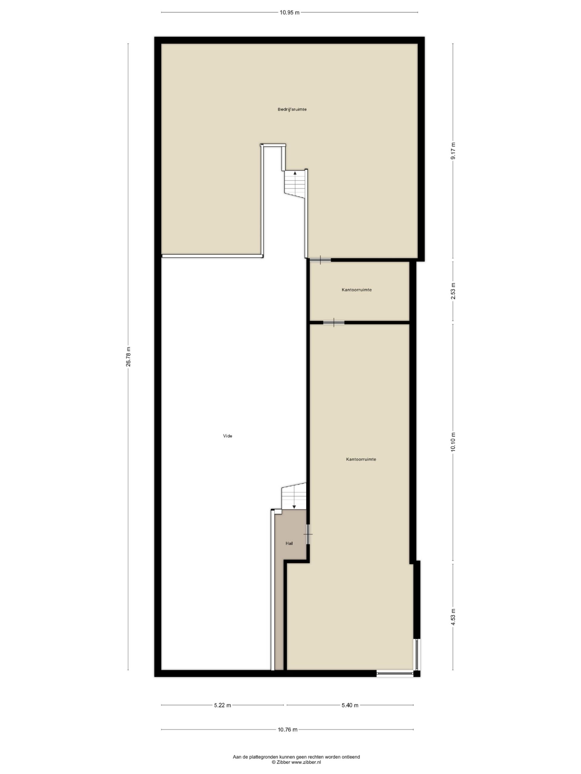
De bedrijfsruimte heeft een oppervlakte van ca. 261 m² en is aan de voorzijde voorzien van een handbediende overheaddeur met separate loopdeur. De bedrijfsruimte kent een keurig afwerkingsniveau en is onder andere voorzien van een tegelvloer, heater en 
meerdere krachtstroomaansluitingen. Daarnaast is er een royale entresol aanwezig, welke intern bereikbaar is vanuit de bedrijfsruimte en geschikt is voor opslag. 

Op zowel de begane grond als de eerste verdieping is een representatieve kantoorruimte gesitueerd met een totale oppervlakte van ca. 179 m². De kantoorruimtes zijn verzorgd afgewerkt en beschikken over een tegelvloer op de begane grond en een nette PVC-vloer op de eerste verdieping. Verder zijn de kantoorruimtes voorzien van airconditioning en een moderne pantry met inbouwapparatuur.

Kenmerken

Overdracht
Vraagprijs:
€ 2.750,- p/m.
Aanvaarding:
In overleg
Servicekosten:
Niet van toepassing
Bouw
Bouwvorm:
Bestaande bouw
Bouwjaar:
2001
Bouwjaar toelichting:
Indeling
Soort Object:
Bedrijfsruimte
Perceeloppervlakte:
595 m2
Parkeergelegenheid
Parkeerplaatsen:
4
Overig
Locatie:
Bedrijventerrein, In woonwijk
Aantal verdiepingen:
2
Onderhoud binnen:
Goed tot uitstekend
Onderhoud buiten:
Goed tot uitstekend

Plattegronden

Omgeving

Brochure aanvragen

Wil je meer weten over dit object? Wij sturen je graag geheel vrijblijvend de brochure toe.