Wensinkstraat 16b, 7622 KS
Borne

Commerciële ruimte gelegen aan de rand van het centrum van Borne per direct beschikbaar voor de verhuur.

€ 1.250,- p/m.
Brochure aanvragen

Omschrijving

Commerciële ruimte gelegen aan de rand van het centrum van Borne per direct beschikbaar voor de verhuur. In de directe omgeving is ruim voldoende gratis parkeergelegenheid. 

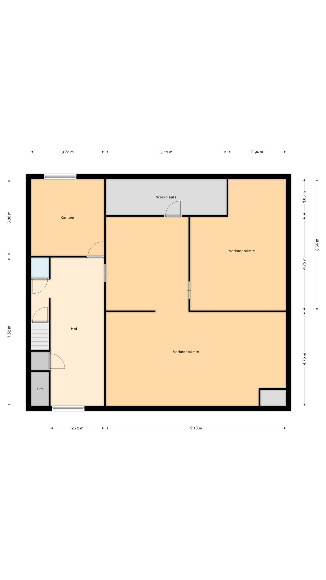
De commerciële ruimte heeft een totale vloeroppervlakte van ca. 246 m² verdeeld over de begane grond en eerste verdieping. De begane grond beschikt over een entree met aangrenzend een courante multifunctionele ruimte. Tevens beschikt de begane grond over opslagruimte welke middels een overheaddeur toegankelijk is. De eerste verdieping beschikt over diverse ruimtes. 

Kenmerken

Overdracht
Vraagprijs:
€ 1.250,- p/m.
Aanvaarding:
Direct
Servicekosten:
Niet van toepassing
Bouw
Bouwvorm:
Bestaande bouw
Bouwjaar:
1969
Bouwjaar toelichting:
Indeling
Soort Object:
Winkelruimte
Totale oppervlakte:
246 m²
In units vanaf:
246 m²
Overig
In units vanaf:
246 m²
Locatie:
In woonwijk
Aantal verdiepingen:
4
Energieklasse:
A
Onderhoud binnen:
Redelijk tot goed
Onderhoud buiten:
Redelijk tot goed

Plattegronden

Brochure aanvragen

Wil je meer weten over dit object? Wij sturen je graag geheel vrijblijvend de brochure toe.